HERITAGE UNIVERSITY STEM BUILDING
Location:  Toppenish, Washington
Type:  On The Boards
Heritage University is a vital center for education, community and culture in Yakima County and the Toppenish area. It empowers a multi-cultural and inclusive student body to overcome the social, cultural, economic and geographic barriers that limit access to higher education. This project presents an opportunity to expand the campus and create new opportunities for student growth. A new building will benefit from beautiful yet simple design, smart choices around efficient layouts and a focus on creating a welcoming, nurturing, and supportive environment where students will feel empowered to learn.
The planning process for this project was strongly guided by the University’s administration, faculty and staff. Their input was critical to the establishment of the preferred development strategy as a whole. The participants brought an understanding of both the University’s history and its future to the table. They voiced a desire to create a state-of-the-art science facility that will welcome the students and community to participate in the activities of the Science Department and University at large.
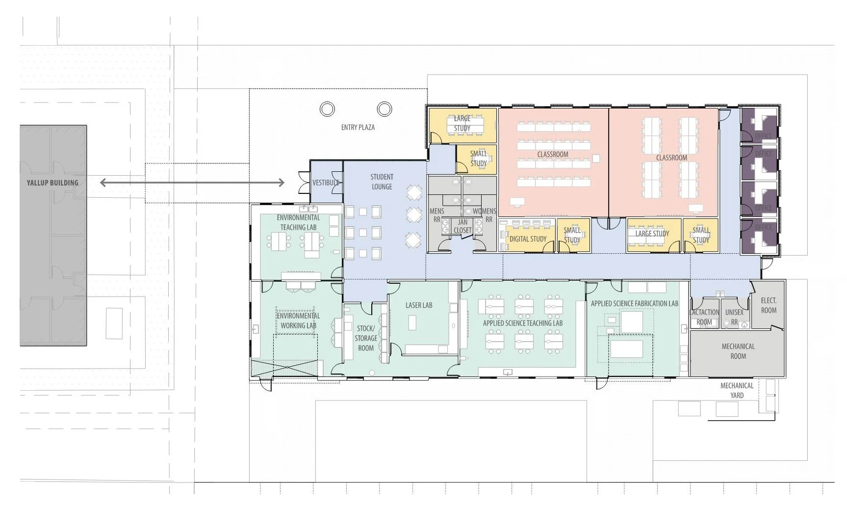
A new 10,000 square foot STEM Learning Center will serve the Pre-Engineering and Environmental Engineering programs and provide general use classrooms to the campus at large. The proposed project will have spaces, building systems and technological infrastructure appropriate for a contemporary instructional building. It will provide additional lab and classroom space for existing programs on campus and will follow the campus masterplan. It will enhance open space and provide a sense of connection to the existing Yallup building and with the surrounding campus environment.
Images:  Graham Baba Architects
